EG6K41J英標常開式氣動襯膠隔膜閥

- 銷售:021-32051999
- 銷售:021-32050777
- 傳真:021-66099555
詳情介紹
- 產品介紹
- 服務承諾
- 訂貨流程
EG6K41J英標常開式氣動襯膠隔膜閥 產品說明
設計與制造:GB122239
結構長度:GB12221、JB1688
法蘭連接尺寸:GB4216、JB78 G6B41W無襯里隔膜閥
G6B41J襯膠氣動隔膜閥,常開型隔膜閥
用途
用途:本閥專用于控制非腐蝕性或一般腐蝕性介質,閥體內腔表面無襯里或覆有可供選擇的各種橡膠,適用于不同工作溫度和流體管路。
適用溫度:≤85℃、≤100℃、 ≤120℃、≤150℃(按照襯里和隔膜材料)
壓力等級:PN0.6、1.0、1.6
主要零件材料
閥體:鑄鐵、球墨鑄鐵、碳鋼、不銹鋼
閥蓋:鑄鐵、球墨鑄鐵、碳鋼、不銹鋼
襯里:無襯里、橡膠
隔膜:橡膠
閥瓣:鑄鐵、碳鋼
氣缸:球墨鑄鐵
活塞:碳鋼
閥桿:碳鋼
手輪:鑄鐵
測試
襯里層:電火花檢測
試驗與檢驗按GB/T13297標準
公稱壓力:PN(Mpa)
閥體:PN×1.5
密封:PN×1.1
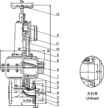
部件列表:1、閥體 2、閥體襯里 3、隔膜 4、閥瓣 5、下閥桿 6、閥蓋 7、氣缸 8、活塞 9、彈簧 10、氣缸蓋 11、上閥桿 12、手輪
主要尺寸及重量
DN | 公稱壓力 | 工作壓力 | L | D | D1 | n-φd | F | H1 | H2 | D0 | B | 氣源壓力 | 氣源接頭 | 耗氣量 | 重量 |
15 | 0.6 | 0.6 | 125 | 95 | 65 | 4-14 | 2 | - | - | - | - | - | - | - | - |
20 | 139 | 105 | 75 | 4-14 | 2 | - | - | - | - | - | - | - | - | ||
25 | 145 | 115 | 85 | 4-14 | 2 | 306 | 320 | 120 | 94 | 0.4 | 10×1 | 2.395×102 | 7.5 | ||
32 | 160 | 140 | 100 | 4-18 | 2 | 410 | 430 | 140 | 120 | 0.4 | 12×1.25 | 6.082×102 | 14.5 | ||
40 | 180 | 150 | 110 | 4-18 | 3 | 415 | 435 | 140 | 120 | 0.4 | 12×1.25 | 6.082×102 | 16 | ||
50 | 210 | 165 | 125 | 4-18 | 3 | 463 | 488 | 160 | 185 | 0.4 | 12×1.25 | 1.235×102 | 24.5 | ||
65 | 250 | 185 | 145 | 4-18 | 3 | 620 | 660 | 160 | 245 | 0.5 | 16×1.5 | 3.725×102 | 30 | ||
80 | 300 | 200 | 160 | 4-18 | 3 | 627 | 687 | 200 | 245 | 0.5 | 16×1.5 | 3.725×103 | 51.5 | ||
100 | 350 | 220 | 180 | 8-18 | 3 | 719 | 769 | 240 | 330 | 0.5 | 16×1.5 | 9.458×103 | 86.5 | ||
125 | 400 | 250 | 210 | 8-18 | 3 | 804 | 872 | 320 | 380 | 0.5 | 20×1.5 | 1.409×104 | 133 | ||
150 | 460 | 285 | 240 | 8-22 | 3 | 920 | 1000 | 320 | 470 | 0.5 | 20×1.5 | 2.868×104 | 196.5 | ||
200 | 0.4 | 570 | 340 | 295 | 8-22 | 4 | 1145 | 1265 | 400 | 470 | 0.5 | 20×1.5 | 4.619×104 | 279.5 | |
250 | 680 | 395 | 350 | 12-22 | 4 | - | - | - | - | - | - | - |
良好的品質、優良的服務 奇高為你創造更多價值!
“奇高閥門”的期望,不斷提升服務質量,精益求精,“真誠的服務”是“奇高”永恒的主題?!捌娓摺眹栏癜凑?span lang="EN-US">IS09001-2000 質量體系認證要求,質量嚴格把關, 責任到人,確保生產、銷售、服務的健康運行。加強與用戶溝通,竭誠為廣大客戶提供優良產品,貼心服務。特此我廠做出以下承諾:
產品標準:
產品嚴格按照中國GB、HG 標準和美國API等標準設計、制造、驗收。密封面硬度達到國家規定要求,寬度超過國家標準。
售前服務:
產品介紹,技術交流,非標產品設計,疑難解答。
售中服務:
守信合同,及時供貨,隨時保持與客戶聯系。 對特殊或復制的產品,我廠安排技術人員對用戶進行產品使用、故障排除
售后服務:
1、“奇高”牌產品品質期為自出廠起12個月,實行“三包”服務(包退、包換、保修)。
2、產品在使用中我廠定期組織技術、質檢人員進行訪問,征詢用戶對產品質量、 使用狀況、改進意見等方面的反饋, 以便進一步提高產品質量。
3、對用戶投訴質量問題,快速作出反應,售后服務人員在24-36小時(省外48小時)趕赴現場。
4、對售后服務,要求用戶填寫服務后的質量反饋信息表,并作出鑒定意見,以便提高奇高的服務質量。
1、客戶如對產品有特殊要求,須在訂貨合同中提供以下說明:
a、結構長度;
b、連接形式;
c、公稱直徑、全通徑、縮徑、管道尺寸;
d、運行介質及溫度、壓力范圍;
e、試驗、檢驗標準及其他要求
2、本廠可根據客戶特定要求配置各類驅動裝置。
3、如由客戶提供確定的閥門類型和型號時,客戶應正確說明其型號的含義和要求,在供需雙方理解一致的條件下簽訂合同。
4、期貨、訂貨的客戶請先來電函詳細告訴所需的閥門型號、規格、數量以及交貨時間、地點,并按總的30%預定金或全額貨款及時匯入我廠帳戶,其余貨款待發貨前匯入,以便及時安排發貨。
訂單流程:
1、客戶采購清單傳真至021-33872143,或來電咨詢 021-33872141
2、收到客戶采購清單,為客戶提供閥門型號選型與報價(價格清單)。
3、具體商定:交貨期、特殊要求等事宜。
訂貨須知:
1、客戶如對產品有特殊要求,須在訂貨合同中提供以下說明:
|
|||||
|
|||||
2、本廠可根據客戶特定要求配置各類驅動裝置。
|
|||||
3、如由客戶提供確定的閥門類型和型號時,客戶應正確說明其型號的含義和要求,在供需雙方理解一致的條件下簽訂合同。
|
|||||
4、期貨、訂貨的客戶請先來電函詳細告訴所需的閥門型號、規格、數量以及交貨時間、地點,并按總的30%預定金或全額貨款及時匯入我廠賬戶, 其余貨款待發貨前匯入,以便及時安排發貨。
|
售中服務:
守信合同,及時供貨,隨時保持與客戶聯系。
對特殊或復制的產品,我廠安排技術人員對用戶進行產品使用、故障排除
售后服務:
1、“奇高”產品品質期為自出廠起12個月,實行“三包”服務(包退、包換、保修)。
2、產品在使用中我廠定期組織技術、質檢人員進行訪問,征詢用戶對產品質量、使用狀況、改進意見等方面的反饋,
以便進一步提高產品質量。
3、對用戶投訴質量問題,快速作出反應,售后服務人員在24-36小時(省外48小時)趕赴現場。
4、對售后服務,要求用戶填寫服務后的質量反饋信息表,并作出鑒定意見,以便提高“奇高”的服務質量。
聲明 |
|